Nuance d'acier : Q235B/Q355B (norme GB)
Application : Atelier métallurgique
Structure métallique : Système de charpente métallique portique
Liteau : Acier galvanisé en C/Z
Type d'assemblage : Assemblage boulonné
Durée de vie : 50 ans
Délai de livraison : 25 à 30 jours
Lieu d'origine : Foshan, Guangdong, Chine
Quantité minimum : 200 m²
Un atelier métallique est un bâtiment préfabriqué conçu pour offrir un espace fiable et fonctionnel destiné à la fabrication, au montage ou à des opérations industrielles. Construits avec des structures et des revêtements en acier de haute qualité, ces bâtiments offrent une résistance, une longévité et des performances supérieures par rapport aux matériaux traditionnels tels que le bois ou le béton. Les ateliers métalliques sont très durables, capables de supporter des usages intensifs ainsi que des conditions climatiques difficiles, ce qui en fait une solution idéale pour de nombreuses applications industrielles.
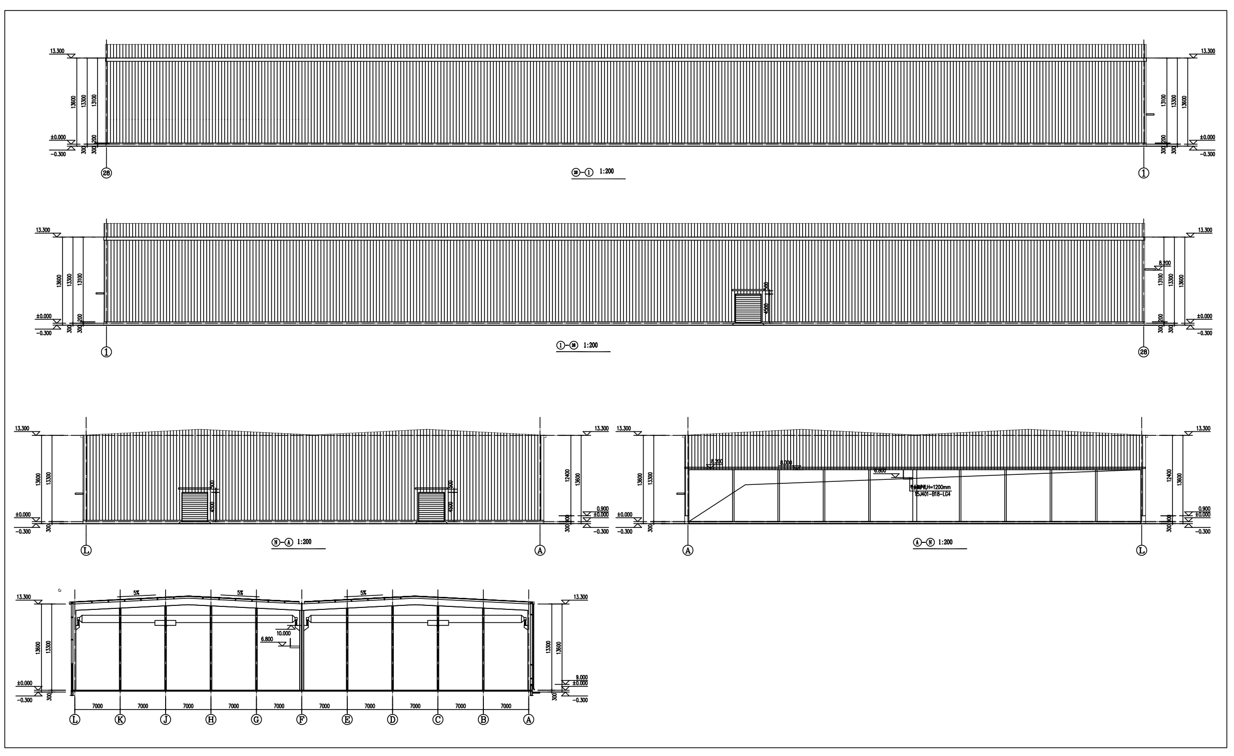
Bâtiment d'atelier métallique lourd – 160,2 m x 71 m x 13,6 m
Ce bâtiment d'atelier métallique de grande taille est conçu pour des opérations industrielles lourdes. Construit en acier structural haute résistance, il offre une durabilité, une fonctionnalité et une personnalisation exceptionnelles.
Spécifications clés :
Ce atelier métallique industriel est idéal pour les usines, centres de maintenance mécanique ou sites de production nécessitant de grandes portées, une hauteur libre importante et des capacités de levage robustes.
Plan du bâtiment en acier



Installation sur site de la charpente métallique

Installation rapide. Performance élevée. Réalisations concrètes.
Spécifications techniques
Je |
Charpente principale en acier |
|||
1. |
CADRE EN STRUCTURE MÉTALLIQUE |
Profilés H soudés/section H |
Q235B/Q355B |
Peinture/Galvanisation à chaud |
2. |
Lisse de mur/toit |
Acier en C/Z |
Le numéro de référence |
Galvanisé |
II - Les produits |
Pièce de contreventement |
|||
1. |
Résistance à la traction |
∅89/114/158 |
Le numéro de référence |
Peinture/Galvanisation à chaud |
2. |
Contreventement flexible |
∅16/18/20 |
Le numéro de référence |
Peinture/Galvanisation à chaud |
3. |
Contreventement |
∅20 |
Le numéro de référence |
Galvanisé |
4. |
Tirant de stabilisation |
∅32 |
Le numéro de référence |
Galvanisé |
5. |
Contreventement diagonal |
L50 |
Le numéro de référence |
Peinture/Galvanisation à chaud |
III |
Toit & Pièce murale |
|||
1. |
Panneau de toit/mur |
Tôle d'acier |
tôle d'acier ondulée de 0,326 à 0,7 mm |
|
Panneau sandwich isolant |
Isolé en EPS, laine de verre/laine minérale/PU/PIR |
|||
2. |
Finition de toit/mur |
Panneau de faîte |
tôle d'acier de 0,4 à 0,7 mm |
|
Flashing |
tôle d'acier de 0,4 à 0,7 mm |
|||
Finition murale pignon |
tôle d'acier de 0,4 à 0,7 mm |
|||
Finition d'angle de mur |
tôle d'acier de 0,4 à 0,7 mm |
|||
IV |
Pièce de fenêtre et de porte |
|||
1. |
Vente de voiture |
Châssis en PVC/aluminium |
Simple/double vitrage (fixe/coulissant/à battant) |
|
2. |
Porte |
Porte coulissante/roulante |
Méthode automatique et manuelle |
|
V. Le groupe |
Accessoires |
|||
1. |
Boulons |
Boulons d'ancrage, Boulons à haute résistance, Boulons galvanisés, Rosettes, goujons de cisaillement |
||
2. |
Gouttière |
Tôle d'acier/galvanisée/Acier inoxydable (304) |
||
3. |
Tuyau d'échappement |
PVC 110/160 |
||
4. |
Ventilateur de toit |
∅600 (Galvanisé) |
||

Caractéristiques de performance:
Les bâtiments en acier sont devenus le choix privilégié pour les projets industriels et commerciaux en raison de leur solidité, rapidité d'installation et rentabilité. Voici les principaux avantages à choisir une structure métallique pour votre prochain projet :
1. Applications polyvalentes
Les structures métalliques conviennent parfaitement à une grande variété d'utilisations, notamment les usines, entrepôts, bâtiments de bureaux, gymnases, hangars à avions, etc. Elles s'adaptent aussi bien aux structures monopoutre qu'aux bâtiments multi-étages ou de grande hauteur, offrant ainsi des options de conception flexibles.
2. Construction rapide et facile
Tous les composants sont préfabriqués en usine, garantissant précision et uniformité. Le montage sur site est simple et rapide, réduisant considérablement le temps de construction et les coûts de main-d'œuvre.
3. Grande durabilité avec un entretien minimal
Les bâtiments métalliques sont conçus pour durer. Ils résistent à la corrosion, aux conditions climatiques extrêmes et aux nuisibles, nécessitant peu d'entretien au fil du temps — idéal pour une utilisation industrielle à long terme.
4. Esthétique moderne et design personnalisé
Les ateliers en acier présentent des lignes épurées et une apparence moderne. Les panneaux muraux colorés et les options de revêtement flexibles permettent de personnaliser les designs extérieurs pour qu'ils s'adaptent à votre marque ou au style de votre bâtiment.
5. Solution économique de construction
Grâce à leur structure légère, les bâtiments en acier réduisent les coûts liés à la fondation. Associés à une construction plus rapide et à des frais d'entretien moindres, le bénéfice économique global des structures métalliques dépasse souvent celui des bâtiments traditionnels en béton.
Application des ateliers métalliques

Bâtiments d'atelier en acier entièrement personnalisables pour répondre à vos besoins opérationnels
Chaque bâtiment d'atelier en acier que nous fournissons est entièrement personnalisé pour satisfaire aux exigences spécifiques de chaque client. De la taille du bâtiment et à l'aménagement intérieur, jusqu'aux équipements essentiels tels que ponts roulants, systèmes de ventilation et isolation thermique, tout est adapté pour soutenir vos objectifs de production.
En investissant dans un atelier sur mesure en structure métallique, les entreprises peuvent créer un espace dédié et bien organisé qui améliore l'efficacité du flux de travail, accroît la productivité et favorise une croissance industrielle durable. C'est pourquoi de plus en plus d'entreprises optent pour la construction d'usines en structures métalliques — elles sont fiables, évolutives et conçues pour offrir des performances optimales.
Processus de fabrication des ateliers métalliques :

FAQ
Q1 : Quels secteurs utilisent couramment les ateliers métalliques ?
A : Les ateliers en acier sont largement utilisés dans la fabrication, l'entreposage, la réparation automobile, l'agriculture, les hangars aériens et les installations sportives en raison de leur solidité, flexibilité et durabilité.
Q2 : Les ateliers métalliques peuvent-ils être personnalisés pour des applications spécifiques ?
A : Oui. Les ateliers métalliques peuvent être adaptés avec des caractéristiques telles que des ponts roulants, des murs isolés, des portes spécialisées et des systèmes de ventilation afin de répondre à des besoins opérationnels uniques.
Q3 : À quelle vitesse un atelier métallique peut-il être construit ?
A : La plupart des composants étant préfabriqués en usine, les ateliers métalliques peuvent généralement être installés sur site en quelques semaines, ce qui permet d'économiser du temps par rapport à une construction traditionnelle.
Q4 : Les ateliers métalliques conviennent-ils aux conditions météorologiques difficiles ?
A : Absolument. Les structures en acier sont conçues pour résister aux conditions extrêmes, à la corrosion et aux charges lourdes, les rendant idéaux pour divers climats.
Q5 : Quels sont les avantages économiques liés à l'utilisation d'ateliers métalliques ?
A : Les ateliers métallurgiques offrent des coûts de fondation réduits, des délais de construction plus rapides et un entretien minimal, assurant un excellent retour sur investissement par rapport aux bâtiments en béton ou en bois.
Commencez votre projet
Prêt à construire un entrepôt préfabriqué en acier durable et rentable ? Notre équipe d'experts est prête à vous proposer une solution personnalisée, de la conception initiale et la fabrication jusqu'à l'installation sur site et le service après-vente.
E-mail : [email protected]
Téléphone : +86-13535848691